270 Ramapo Avenue

  • $$860,000 USD
  • Beds: 3
  • Baths: 3.5
  • Sq Ft: 2,325

Description

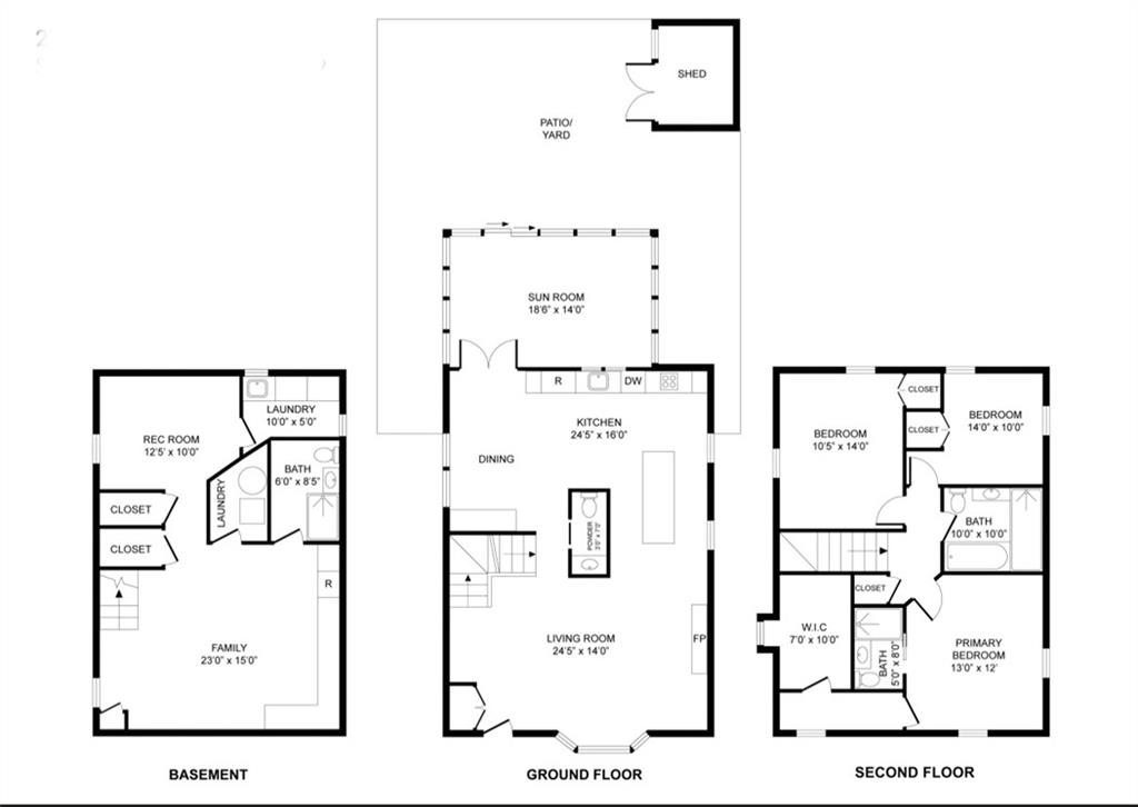
Welcome to one of the most charming fully renovated single family homes Woodrow has to offer. Nestled on a perfectly manicured 41×100 lot, this gem features a private driveway that easily fits two cars. As you make your way through the wrought iron front door you will immediately notice the well lit, open floor plan consisting of the living room, eat in kitchen and conveniently positioned powder room. Your inner chef will enjoy the brand new stainless steel appliances, stone countertops and subway style backsplash dressing the kitchen. Owner speared no expense in creating a private oasis covered sunroom where you can enjoy movie nights with your family and friends.
Make your way to the second floor where you will find 3 specious bedrooms and two full bathrooms with radiant heated flooring. The primary bedroom constructed with private new en-suite bathroom and a large walk in closet. As you head down via the internal staircase to the basement you will find a large family room with 3/4 bathroom and an additional recreational room with lots of storage space. Be the life of the party in the freshly concreted backyard with a large storage shed for your convenience.
Walk in distance to Bloomingdale’s Park, public transportation, schools, shopping and major thruways.
Please be aware that the square footage includes the basement.

View full listing details

Listing Details

Price:$$860,000 USD
Address:270 Ramapo Avenue
City:Staten Island
State:New York
Zip Code:10309
MLS:478340
Year Built:1970
Square Feet:2,325
Bedrooms:3
Bathrooms:3.5
Half Bathrooms:3
acUnits:1
basementAmenities:Finished
bathsTotalLevel1:1
bathsTotalLevel2:2
bedsTotalLevel2:3
block:6971
borough:Staten Island
buildingFootprintSqFt:775
buildingLength:31
buildingType:Detached
buildingWidth:25
constructionMaterials:Wood Frame
crossStreetName:Meguire ave
crossStreetName2:Lenevar ave
electric:220 V
exterior:Siding, Stone, Stucco
financing:1031 Exchange, Bank Mortgage, Cash
flooring:Hardwood, Tile
foundationDetails:Poured Concrete
handicapAccessYnu:No
heatDelivery:Baseboard
heatingFuel:Gas
hotWater:Gas
lotNumber:66
lotSizeLength:100
lotSizeWidth:41
lotSqFt:4100
mlsAreaMajor:Woodrow
negotiateThru:Broker
numberOfFamilies:1
parkingAttributes:2 Spaces
parkingFeatureSingle:Private Drive
residentialFeatures:Central Air, Dishwasher, Laundry Area, Microwave, Refrigerator, Stove
roof:Pitched
roomCount:13
roomsTotalLevel1:3
roomsTotalLevel2:3
saleType:Arm's Length
stories:2
style:Other
taxAmount:7560
totalRooms:7
transactionType:Sale
yard:Front, Side, Fenced - Full
Please sign up for a Listing Manager account below to inquire about this listing
  • Price: $$860,000 USD
  • Address:

    270 Ramapo Avenue
    Staten Island, New York 10309

  • Beds: 3
  • Baths: 3.5
  • Sq Ft: 2,325
← Back to main site